- Woonoppervlakte
- Circa 138 m²
- Perceeloppervlakte
- Circa 256 m²
- Bouwjaar
- Gebouwd in 1974
- Aantal kamers
- 5 kamers (4 slaapkamers)
Open huis op 12 juli as van 10.00 tot 14.00 uur
Sfeervolle hoekwoning met garage, oprit en verrassend veel ruimte!
Aan de Drapeniersdonk 321 in Apeldoorn staat deze ruime en verzorgde hoekwoning te koop. De woning heeft een royaal woonoppervlak van circa 138 m², beschikt over een eigen oprit, stenen garage en een heerlijke tuin. Gelegen op een perceel van .... m² in een rustige, kindvriendelijke buurt is dit de perfecte gezinswoning met volop mogelijkheden.
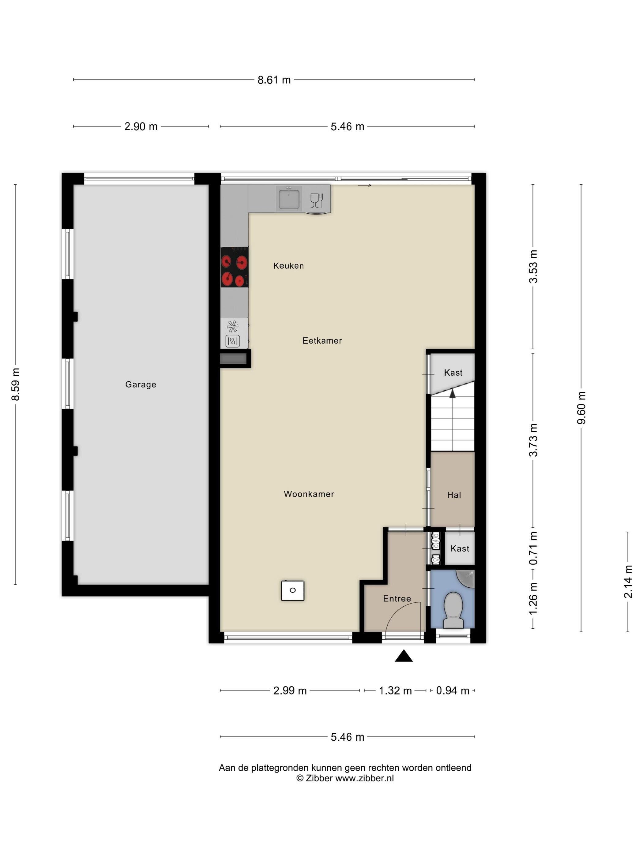
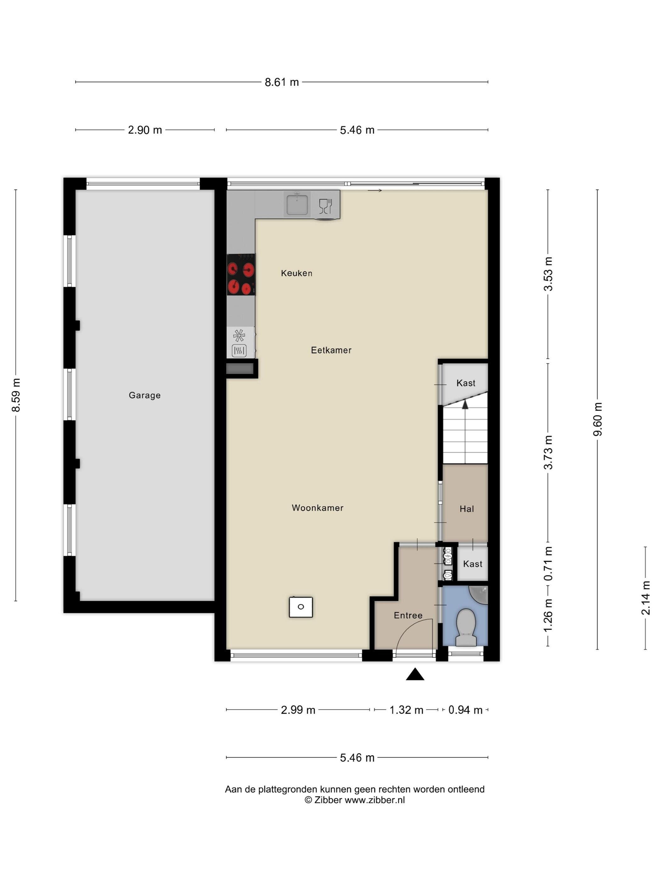
Indeling
Begane grond:
Entree, hal met toilet, toegang tot de ruime en lichte woonkamer met prettig uitzicht op de tuin. Vanuit de woonkamer is de open keuken bereikbaar, die is voorzien van diverse inbouwapparatuur. Via de schuifpui stap je zo de zonnige achtertuin in.
Eerste verdieping:
Overloop, drie slaapkamers en een badkamer met douche, tweede toilet en wastafelmeubel.
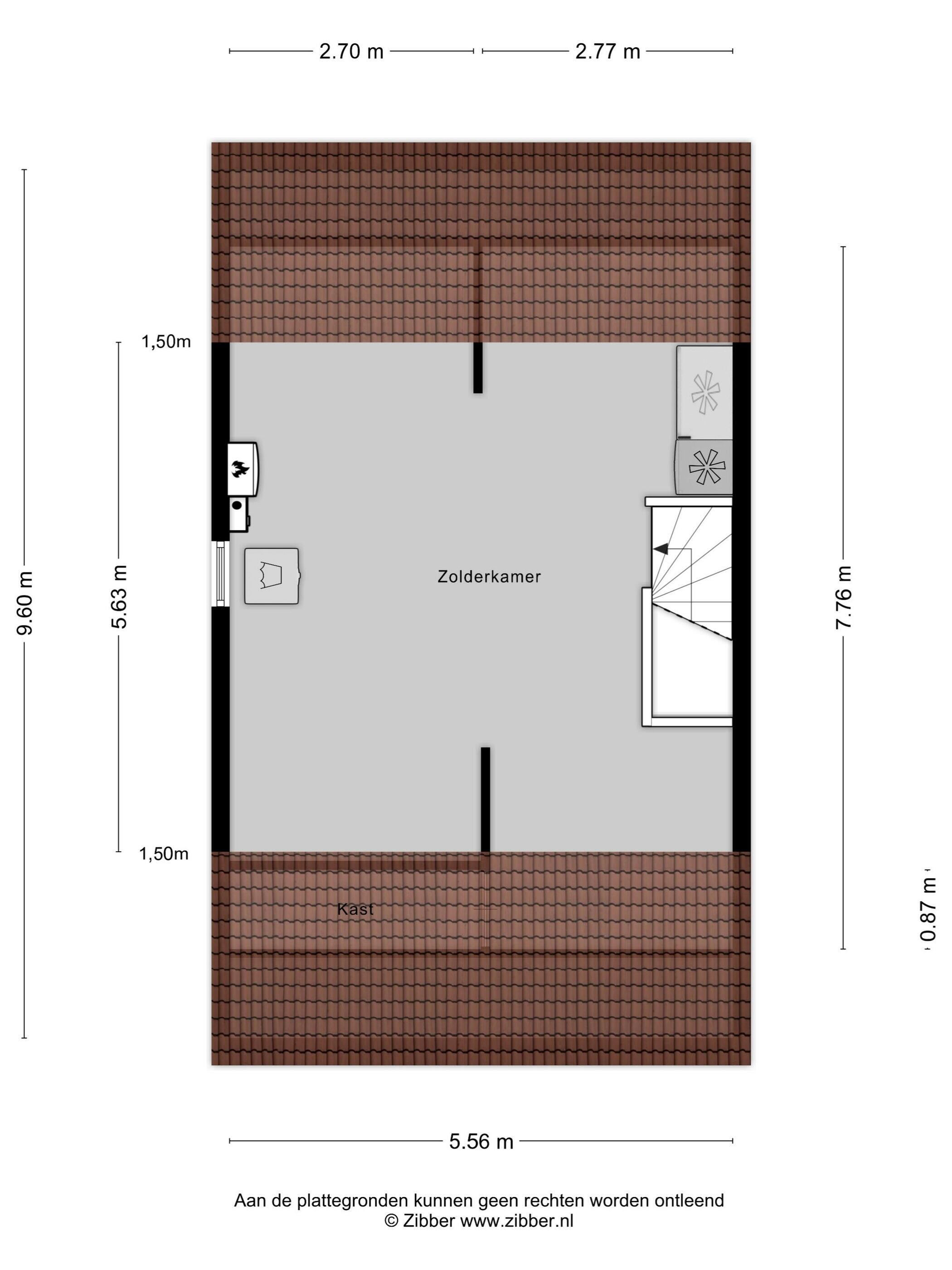
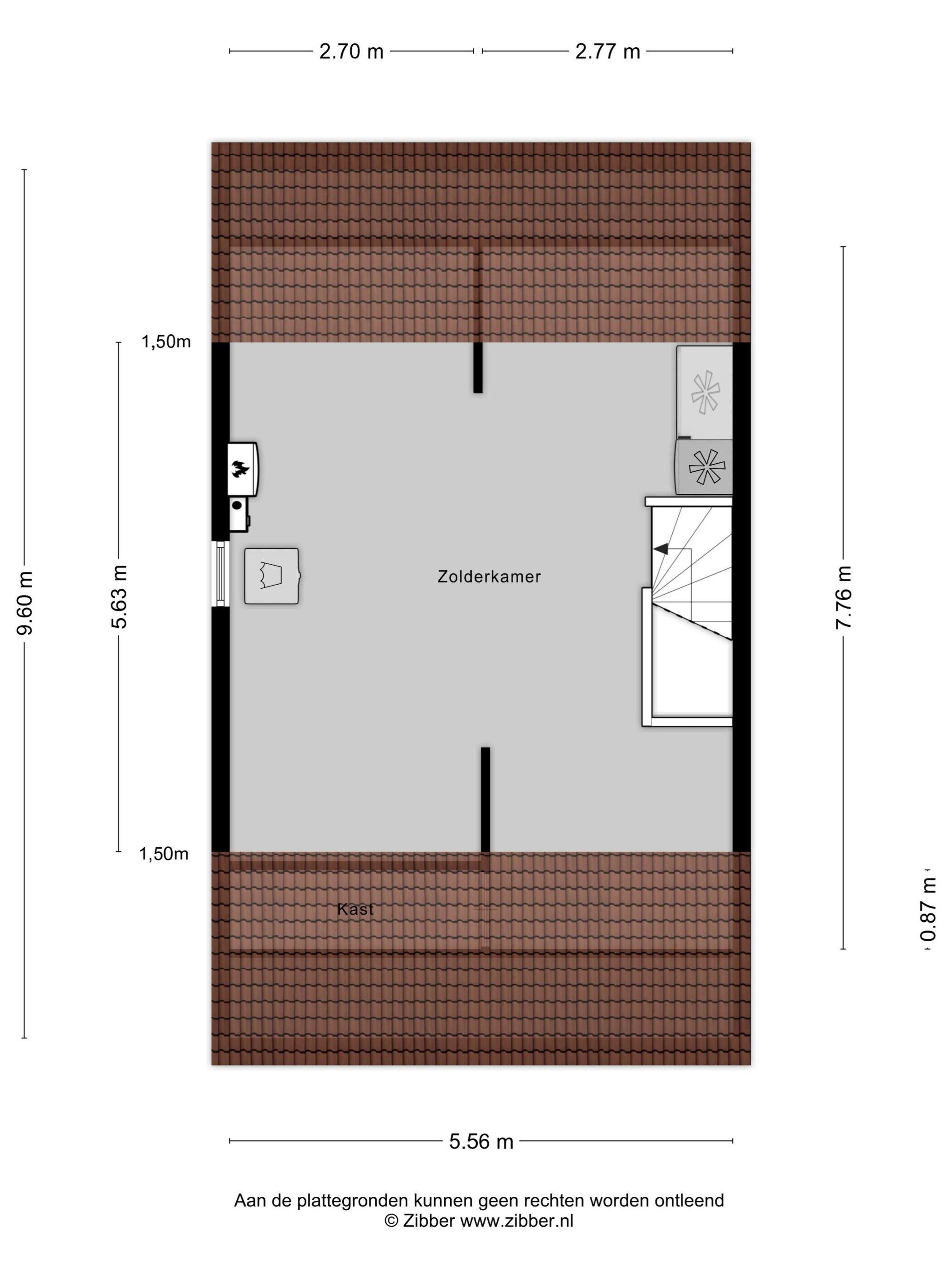
Tweede verdieping:
Ruime zolder bereikbaar via een vaste trap, met opstelling van de CV-installatie. Hier is eenvoudig een vierde slaapkamer, werkkamer of hobbyruimte te realiseren.
Buiten:
Naast de woning bevindt zich een stenen garage van ca. 8,50 x 2,90 m en in de achtertuin is er een praktische stenen berging aanwezig.
Pluspunten
- Hoekwoning met veel privacy
- Oprit en ruime stenen garage
- Zonnige tuin met extra berging
- Nette keuken met inbouwapparatuur
- Ruime zolder met mogelijkheid voor een vierde slaapkamer
- Gelegen in een rustige, kindvriendelijke buurt
- Dichtbij winkels, scholen, openbaar vervoer en uitvalswegen
- Energielabel D, geldig tot 09-04-2031
Ligging
De woning ligt in een rustige straat in de geliefde wijk Zuidoost, een kindvriendelijke buurt met relatief veel gezinnen. Op loopafstand vind je een supermarkt, scholen en een treinstation. Ook het centrum van Apeldoorn is snel bereikbaar per fiets of auto en binnen enkele minuten ben je op de uitvalswegen richting Deventer, Zutphen en de A1.
Ben je op zoek naar een ruime, goed gelegen woning met volop potentie? Drapeniersdonk 321 is zeker een bezichtiging waard!
Neem contact met ons op, wij laten je deze fijne woning graag van binnen zien!
Vraagprijs: € 399.500, --
Dit betreft een verkoop bij inschrijving en hiervoor wordt er op 12 juli as een open dag georganiseerd van 10.00 uur tot 14.00 uur. U bent dan van harte welkom.
Tot en met vrijdag 18 juli 14:00 uur kan er geboden worden.
Uw contactpersoon is Jan Willem Dalhuisen.
“Hoewel deze verkooptekst met zorg is samengesteld, kunnen er geen rechten aan worden ontleend. Wijzigingen en fouten voorbehouden.”
Overdracht
- Vraagprijs
- € 399.500 k.k.
- Status
- Verkocht
Bouw
- Object type
- Eengezinswoning, hoekwoning
- Soort bouw
- Bestaande bouw
- Bouwjaar
- 1974
- Soort dak
- Zadeldak bedekt met pannen
Oppervlakte en inhoud
- Woonoppervlakte
- 138 m²
- Perceeloppervlakte
- 256 m²
- Inhoud
- 578 m³
- Externe bergruimte
- 9 m²
Indeling
- Aantal kamers
- 5 kamers (4 slaapkamers)
- Aantal woonlagen
- 2 woonlagen en een zolder
- Voorzieningen
- Glasvezelkabel, natuurlijke ventilatie, en schuifpui
Energie
- Energielabel
- D
- Energielabel registratie
- 11-05-2021
Buitenruimte
- Tuin
- Achtertuin
- Afmetingen achtertuin
- 48 m² (8,00 meter diep en 6,00 meter breed)
- ligging tuin
- Gelegen op het westen en bereikbaar via achterom
Bergruimte
- Schuur / berging
- Vrijstaande stenen berging
- Voorzieningen
- Elektra
Garage
- Soort garage
- Aangebouwde stenen garage
- Capaciteit
- 1 auto
- Voorzieningen
- Elektra
Parkeergelegenheid
- Soort parkeergelegenheid
- Op eigen terrein en openbaar parkeren
Energieverbruik in Apeldoorn
Energielabel deze woning
Energielabel D
Publicatie energielabel: 11-05-2021
Stroomverbruik per jaar
(Gemiddelde hoekwoning in Apeldoorn)
Gasverbruik per jaar
(Gemiddelde hoekwoning in Apeldoorn)
* Cijfers zijn afkomstig van het CBS en bedoeld als indicatie en kunnen verschillen voor deze woning
Indicatie hypotheeklasten
Eigen inleg:
Spaargeld / overwaarde
Rente:
Laagste 10-jaars rente
Laagste 10-jaars rente
2,76% - Centraal Beheer Groen... - NHG
2,98% - Centraal Beheer Groen... - 80%
Laagste 20-jaars rente
3,19% - Centraal Beheer Groen... - NHG
3,31% - Centraal Beheer Groen... - 80%
Laagste 30-jaars rente
3,34% - Centraal Beheer Groen... - NHG
3,47% - Centraal Beheer Groen... - 80%
Hypotheek:
Bruto maandlasten: € 0 p/m
Netto maandlasten: € 0 p/m
Hoe berekenen we dit?
Het rentepercentage is gebaseerd op de laagste 10-jaars vaste rente voor één hypotheekdeel. De vermelde rente (2.76% met NHG) is gecontroleerd op 30-08-2025. Deze berekening is gebaseerd op een annuïteitenhypotheek die volledig wordt afgelost, waarbij de maandlasten gedurende de gehele looptijd gelijk blijven. De werkelijke rente en netto maandlasten kunnen variëren, afhankelijk van uw persoonlijke situatie en de hypotheekverstrekker. Raadpleeg een financieel adviseur voor een nauwkeurige berekening en advies. Aan deze berekening kunnen geen rechten worden ontleend; het dient enkel als indicatie.
Documentatie
Kadastrale kaart
Leefomgeving
Plattegronden PDF
WOZ waarderapport
BAG uittreksel
Brochure
Bezichtiging
Bod uitbrengen
Waardebepaling
Zoekopdracht
Alles downloaden
Zonnegrenzen bekijken
Op de kaart
Inwoners in Apeldoorn
Cijfers voor postcodegebied 7326
- Totaal aantal inwoners
- 9890 inwoners
- Mannen
- 49%
- Vrouwen
- 51%
Inwoners in Apeldoorn
Cijfers voor postcodegebied 7326
- tot 15 jaar
- 18%
- 15 tot 25 jaar
- 10%
- 25 tot 35 jaar
- 23%
- 45 tot 65 jaar
- 27%
- 65 en ouder
- 22%
Huishoudens in Apeldoorn
Cijfers voor postcodegebied 7326
- Eenpersoons zonder kinderen
- 26%
- Meerpersoons zonder kinderen
- 35%
- Huishoudens zonder kinderen
- 61%
Huishoudens in Apeldoorn
Cijfers voor postcodegebied 7326
- Huishoudens met één kind
- 8%
- Huishoudens met meerdere kinderen
- 30%
- Huishoudens met kinderen
- 38%
Woningen in Apeldoorn
Cijfers voor postcodegebied 7326
- Woningen voor 1945
- 1%
- Woningen tussen 1945 en 1965
- 1%
- Woningen tussen 1965 en 1975
- 20%
- Woningen tussen 1975 en 1985
- 65%
- Woningen tussen 1985 en 1995
- 14%
Woningen in Apeldoorn
Cijfers voor postcodegebied 7326
- Woningen tussen 1995 en 2005
- 1%
- Woningen tussen 2005 en 2015
- 1%
- Woningen na 2015
- 1%
- Huurwoningen
- 40%
- Koopwoningen
- 60%
Overige in Apeldoorn
Cijfers voor postcodegebied 7326
- Gemiddelde WOZ waarde
- € 205.000,-
- Personen onder de 65 met uitkering
- 8%
Overige in Apeldoorn
Cijfers voor postcodegebied 7326
- Adressen per km²
- 1669
- Stedelijkheid (schaal 1 op 5)
- 80%
Nieuwhuis Makelaardij BV
Indien u vragen heeft of u wilt een bezichtiging inplannen, dan kunt u gebruik maken van het formulier hiernaast. Er zal daarna op korte termijn contact met u worden opgenomen.
Veluwezoom 5
1327 AA, Almere
085 - 0607 081 info@nieuwhuismakelaardij.nl www.nieuwhuismakelaardij.nlContact opnemen
Welkom bij NieuwHuis Makelaardij!
Bij ons draait alles om volledige ondersteuning bij de zoektocht naar uw nieuwe woning. Of u nu wilt verkopen, kopen, een energielabel nodig hebt, een bouwkundige keuring overweegt of gewoonweg meer inzicht wilt krijgen in de woningmarkt: wij bieden een complete en zorgeloze service die perfect aansluit bij uw wensen. Onze opdrachtgevers op Funda waarderen ons met een uitstekende score van 9.6 voor service en begeleiding, iets waar we ontzettend trots op zijn.
Wat maakt ons uniek? Dat lichten we graag persoonlijk toe. Voor ons begint succes bij goed luisteren naar uw wensen. We willen echt begrijpen wat u zoekt en leggen helder uit wat wij voor u kunnen betekenen. Bij NieuwHuis Makelaardij krijgt u niet alleen ondersteuning bij het kopen of verkopen van uw woning, maar ook aanvullende diensten zoals hypotheekadvies, energielabels, en bouwkundige keuringen. Alles overzichtelijk geregeld onder één dak – dat is wel zo handig!
Wij bieden een verkoopstrategie op maat.
Bij NieuwHuis Makelaardij weten we dat het verkopen van een woning een grote stap is. Daarom staan wij voor u klaar met onze expertise en persoonlijke begeleiding om het hele proces zo soepel mogelijk te laten verlopen. Van de eerste woningopname en het vaststellen van de ideale vraagprijs, tot het ontwikkelen van een gerichte verkoopstrategie en het voeren van onderhandelingen voor het beste resultaat: wij nemen alles uit handen.
Wij ondersteunen u bij de aankoop van uw woning.
Een huis kopen is een grote beslissing, en bij NieuwHuis Makelaardij zijn we er om dit proces zo makkelijk en succesvol mogelijk te maken. Of het nu gaat om het vinden van de juiste woningen, het regelen van bezichtigingen, of het bieden en onderhandelen: wij begeleiden u bij elke stap, zodat u met vertrouwen uw droomwoning kunt vinden.
Nieuwste reviews
-
S
Wat een topper is Martin. Werkelijk nog nooit zo'n fijne makelaar getroffen. Vanaf het 1e moment voelde wij ons echt begrepen. We wilden ons...
-
Miranda Corvers
Heel fijn geholpen met alles! Betrouwbaar, vakkundig en super vriendelijk. Ontzettend bedankt nogmaals!!
-
Desiree Bartelings
Hele goede en prettige aankoop makelaar!